**Handwerkerobjekt** Eine sichere Investition mit grünen Aussichten in Schmargendorf
Objektart
Adresse
Objektdaten
Informationen
Ausstattung
Details
Die zum Verkauf stehende Eigentumswohnung befindet sich in der 3. Etage einer Eigentumswohnanlage mit insgesamt 13 Wohneinheiten. Das Gebäudeensemble wurde 1971 auf dem 1.102 m² großen Grundstück erbaut.
Nachdem die Wohnung über einen langen Zeitraum von einer älteren Dame bewohnt wurde, wartet dieses verborgene Domizil nunmehr darauf, im modernen Glanz zu erstrahlen. Hierfür ist neben der Modernisierung des Badezimmers, die Erneuerung der Elektrik und der Fußbodenbeläge erforderlich.
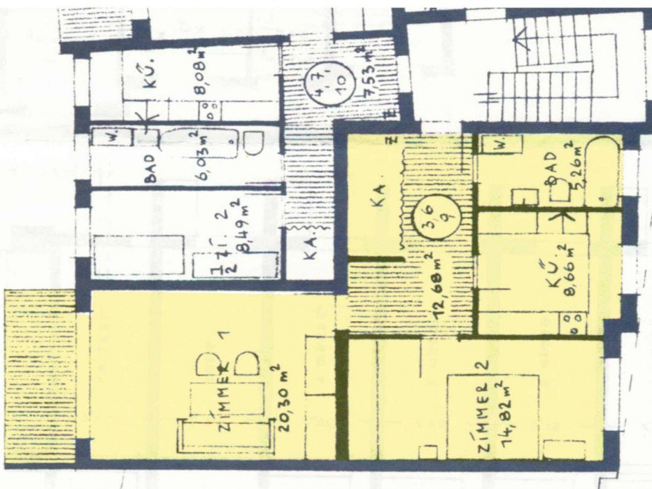
Die Wohnung verfügt über ein ca. 20 m² großes Wohnzimmer mit anschließendem und zur Hofseite ausgerichteten Süd-Balkon. Mit einer Größe von 12,68 m² bietet die große Diele ausreichend Platz für einen Einbauschrank. Das zur Straßenseite gelegene Schlafzimmer hat eine Größe von ca. 14,82 m², die Küche ist ca. 8,66 m ² groß.
Die Wohnung liegt im Ortsteil Schmargendorf im Bezirk Charlottenburg-Wilmersdorf.
Schmargendorf grenzt im Norden an den Ortsteil Halensee, im Osten an den
Ortsteil Wilmersdorf und im Süden an den Ortsteil Dahlem sowie im Westen an den Ortsteil
Grunewald.
Schmargendorf ist zentral gelegen mit sehr guten Anbindungen an den öffentlichen Nah-
verkehr. Der durch Ein- und Mehrfamilienhäuser geprägte Bezirk bietet bürgerliches Wohnen mit großstädtischen Vorteilen. Krankenhäuser, Schulen und alle Einrichtungen des öffentlichen Lebens sind vorhanden
Die in dem Exposé enthaltenen Informationen beruhen ausschließlich auf den Angaben des Verkäufers, von Behörden oder anderen Dritten. MissImmo übernimmt daher keine Haftung für die Richtigkeit und Vollständigkeit der im Exposé enthaltenen Informationen.
Die Haftung von MissImmo wird auf grob fahrlässiges und vorsätzliches Verhalten begrenzt, sofern die Pflichtverletzung nicht zu einer Verletzung des Lebens, des Körpers oder der Gesundheit des Auftraggebers führt.
Ansprechpartner
Telefax: 00493070787606
Mobil: 00491721616131
info@missimmo.de
Ich bin damit einverstanden, dass mir Karten von Google angezeigt werden. Es gelten die Datenschutzbedingungen von Google (https://policies.google.com/privacy).
Ich bin einverstanden